Fire Riser Room Dimensions

Modern Design Ada Compliant Fire Riser Room Name Signs With

Modern Design Ada Compliant Fire Riser Room Name Signs With

Estimating Fire Sprinklers Construction Workzone

Estimating Fire Sprinklers Construction Workzone

Ames Fire Waterworks Watts Brands

Ames Fire Waterworks Watts Brands

Chapter 6 Fire Fighting Systems

Chapter 6 Fire Fighting Systems

New Products Reliable Automatic Sprinkler Co Inc

New Products Reliable Automatic Sprinkler Co Inc

Guide To Fire Sprinkler Changes In The 2018 Ifc Ibc Irc

Guide To Fire Sprinkler Changes In The 2018 Ifc Ibc Irc

Guide To Fire Sprinkler Changes In The 2018 Ifc Ibc Irc

Guide To Fire Sprinkler Changes In The 2018 Ifc Ibc Irc

Division 21 Fire Suppression Design Criteria It Is The

Division 21 Fire Suppression Design Criteria It Is The

Sprinkler Riser Room Sign

Sprinkler Riser Room Sign

National Fire Protection Association Report

National Fire Protection Association Report

Chapter 6 Fire Fighting Systems

Chapter 6 Fire Fighting Systems

Estimating Fire Sprinklers Construction Workzone

Estimating Fire Sprinklers Construction Workzone

Hearth With Loose Riser Heat Design

Hearth With Loose Riser Heat Design

6000 S Kings Ranch Road Gold Canyon Az Mls 5870683

6000 S Kings Ranch Road Gold Canyon Az Mls 5870683

Standpipes 101 Part 1 A Beginner S Guide To Standpipe

Standpipes 101 Part 1 A Beginner S Guide To Standpipe

Electrical Installations Electrical Riser Rooms

Electrical Installations Electrical Riser Rooms

Ifc Section 50911 Compliant Fire Sprinkler Riser Room Sign

Ifc Section 50911 Compliant Fire Sprinkler Riser Room Sign

Untitled

Untitled

M E Room Dimensions Mechanical Fan Heating Ventilating

M E Room Dimensions Mechanical Fan Heating Ventilating

Legislation And Safety Of Tall Residential Buildings

Legislation And Safety Of Tall Residential Buildings

Fire Riser Room Sign

Fire Riser Room Sign

Vertical Fire Sprinkler Riser Room Sign 10x7 In Aluminum

Vertical Fire Sprinkler Riser Room Sign 10x7 In Aluminum

Modern Design Ada Compliant Fire Riser Room Name Signs With

Modern Design Ada Compliant Fire Riser Room Name Signs With

Electrical Installation Wiring Pictures Building S

Electrical Installation Wiring Pictures Building S

What Is A Fire Riser Room Ifc And Nfpa Codes Standards

What Is A Fire Riser Room Ifc And Nfpa Codes Standards

Profab Concealed Riser Doors Aesthetics Without Compromise

Profab Concealed Riser Doors Aesthetics Without Compromise

Chapter 6 Fire Fighting Systems

Chapter 6 Fire Fighting Systems

Fire Sprinkler Riser Inside Sign

Fire Sprinkler Riser Inside Sign

House Cartoon 940 575 Transprent Png Free Download Square

House Cartoon 940 575 Transprent Png Free Download Square

Guide To Fire Sprinkler Changes In The 2018 Ifc Ibc Irc

Guide To Fire Sprinkler Changes In The 2018 Ifc Ibc Irc

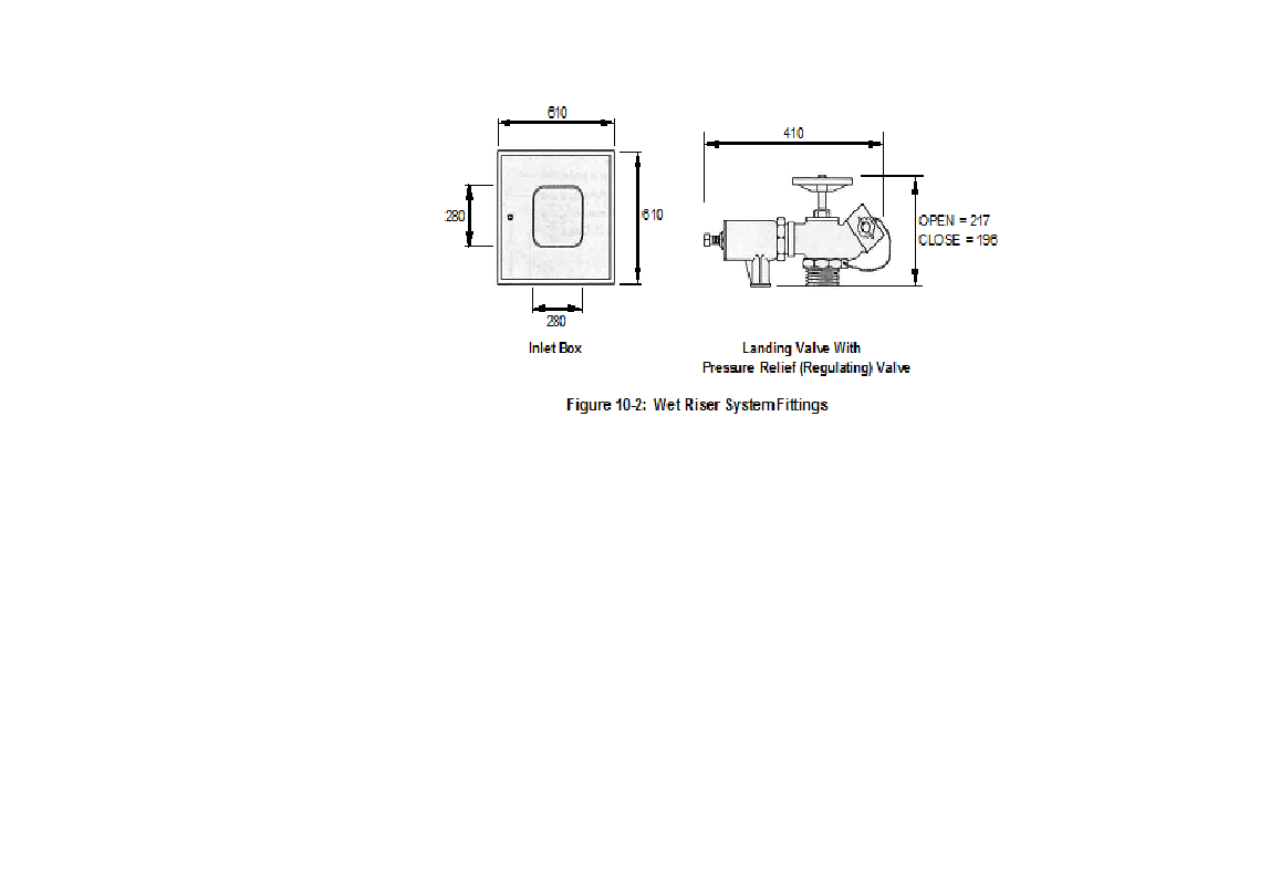
Fire Safety And Protection Systems Unit 10 Wet Riser System

Fire Safety And Protection Systems Unit 10 Wet Riser System

Pump And Riser Room Size

Pump And Riser Room Size

Electrical Installations Electrical Riser Rooms

Electrical Installations Electrical Riser Rooms

Electrical Installation Wiring Pictures Building S

Electrical Installation Wiring Pictures Building S

Efd Fmo 4 4 Sprinkler And Standpipe Systems

Efd Fmo 4 4 Sprinkler And Standpipe Systems

Chapter 6 Fire Fighting Systems

Chapter 6 Fire Fighting Systems

Standpipe Systems Design And Installation Requirements

Standpipe Systems Design And Installation Requirements

Consulting Specifying Engineer Piping Arrangements For

Consulting Specifying Engineer Piping Arrangements For

Sprinkler Riser Room Rr 01 Richa Graphics

Sprinkler Riser Room Rr 01 Richa Graphics

Pump And Riser Room Size

Pump And Riser Room Size

Guide To Fire Sprinkler Changes In The 2018 Ifc Ibc Irc

Guide To Fire Sprinkler Changes In The 2018 Ifc Ibc Irc

Fire Sprinkler System Wikipedia

Fire Sprinkler System Wikipedia

Tyco Fire Products

Tyco Fire Products

Consulting Specifying Engineer Sprinkler Installations

Consulting Specifying Engineer Sprinkler Installations

Building Training Props Into A Fire Station Fire Apparatus

Building Training Props Into A Fire Station Fire Apparatus

High Rise Fire Fighting Dry Risers

High Rise Fire Fighting Dry Risers

National Fire Protection Association Report

National Fire Protection Association Report

Standpipe Systems Design And Installation Requirements

Standpipe Systems Design And Installation Requirements

What Is A Fire Riser Room Ifc And Nfpa Codes Standards

What Is A Fire Riser Room Ifc And Nfpa Codes Standards

Efd Fmo 4 4 Sprinkler And Standpipe Systems

Efd Fmo 4 4 Sprinkler And Standpipe Systems

Guide To Fire Sprinkler Changes In The 2018 Ifc Ibc Irc

Guide To Fire Sprinkler Changes In The 2018 Ifc Ibc Irc

Wet Riser Designing Buildings Wiki

Wet Riser Designing Buildings Wiki

Fire Safety And Protection Systems Unit 10 Wet Riser System

Fire Safety And Protection Systems Unit 10 Wet Riser System

What Is A Fire Riser Room Ifc And Nfpa Codes Standards

What Is A Fire Riser Room Ifc And Nfpa Codes Standards

M E Room Dimensions Mechanical Fan Heating Ventilating

M E Room Dimensions Mechanical Fan Heating Ventilating

Fire Riser Room Landscape Wall Sign

Fire Riser Room Landscape Wall Sign

Fire Protection System Signage Facp And Sprinkler Zone Map

Fire Protection System Signage Facp And Sprinkler Zone Map

Guide To Fire Sprinkler Changes In The 2018 Ifc Ibc Irc

Guide To Fire Sprinkler Changes In The 2018 Ifc Ibc Irc

What Is A Fire Riser Room Ifc And Nfpa Codes Standards

What Is A Fire Riser Room Ifc And Nfpa Codes Standards

Home Theater Seating Layout 5 Key Design And Placement Tips

Home Theater Seating Layout 5 Key Design And Placement Tips

What Are The Code Requirements For Stair Framing And Are

What Are The Code Requirements For Stair Framing And Are

Electrical Room Wikipedia

Electrical Room Wikipedia

Efd Fmo 4 4 Sprinkler And Standpipe Systems

Efd Fmo 4 4 Sprinkler And Standpipe Systems

Fire Riser Room Sign Brushed Aluminium 10x14 Potere D

Fire Riser Room Sign Brushed Aluminium 10x14 Potere D

Guide To Fire Sprinkler Changes In The 2018 Ifc Ibc Irc

Guide To Fire Sprinkler Changes In The 2018 Ifc Ibc Irc

Chapter 6 Fire Fighting Systems

Chapter 6 Fire Fighting Systems

Rapidrop British Manufacturer Supplier Of Fire Sprinklers

Rapidrop British Manufacturer Supplier Of Fire Sprinklers

Electrical Installation Wiring Pictures 2010

Electrical Installation Wiring Pictures 2010

National Fire Protection Association Report

National Fire Protection Association Report

4 2 Access Within Buildings

4 2 Access Within Buildings

What Is A Fire Riser Room Ifc And Nfpa Codes Standards

What Is A Fire Riser Room Ifc And Nfpa Codes Standards

M E Room Dimensions Mechanical Fan Heating Ventilating

M E Room Dimensions Mechanical Fan Heating Ventilating

A Breakout Of A Floor Control Riser Assembly

A Breakout Of A Floor Control Riser Assembly

Project Fire Products Firepod

Project Fire Products Firepod

Sign Fire Sprinkler Riser Room 9x9 1 2 Hd Supply

Sign Fire Sprinkler Riser Room 9x9 1 2 Hd Supply

Chapter 6 Fire Fighting Systems

Chapter 6 Fire Fighting Systems

Guide To Fire Hose Reels And Racks For Standpipe And Hose

Guide To Fire Hose Reels And Racks For Standpipe And Hose

Home Theater Seating Layout 5 Key Design And Placement Tips

Home Theater Seating Layout 5 Key Design And Placement Tips

What Is A Fire Riser Room Ifc And Nfpa Codes Standards

What Is A Fire Riser Room Ifc And Nfpa Codes Standards

Chapter 6 Fire Fighting Systems

Chapter 6 Fire Fighting Systems

Efd Fmo 4 4 Sprinkler And Standpipe Systems

Efd Fmo 4 4 Sprinkler And Standpipe Systems

Sprinkler Riser Room Rr 01 Richa Graphics

Sprinkler Riser Room Rr 01 Richa Graphics

High Rise Buildings The Code Corner

High Rise Buildings The Code Corner

The Fire Department Connection A Primer

The Fire Department Connection A Primer

3 9 1 2 Stairway Construction

3 9 1 2 Stairway Construction

Blazemaster Cpvc Specification And Support

Blazemaster Cpvc Specification And Support

City Of Salina Presentation Information About Proposed

City Of Salina Presentation Information About Proposed

What Is A Fire Riser Room Ifc And Nfpa Codes Standards

What Is A Fire Riser Room Ifc And Nfpa Codes Standards

Mehandes Engineering

Mehandes Engineering

Electrical Installations Electrical Riser Rooms

Electrical Installations Electrical Riser Rooms

Fire Pump Installation Requirements Dbr Inc

Fire Pump Installation Requirements Dbr Inc

Fire Pump Installation Requirements Dbr Inc

Fire Pump Installation Requirements Dbr Inc

What Is A Fire Riser Room Ifc And Nfpa Codes Standards

What Is A Fire Riser Room Ifc And Nfpa Codes Standards

Signs Required By The International Fire Code Ifc And

Signs Required By The International Fire Code Ifc And

Modern Design Ada Compliant Fire Riser Room Name Signs With

Modern Design Ada Compliant Fire Riser Room Name Signs With

Electrical Room Wikipedia

Electrical Room Wikipedia

Pump And Riser Room Size

Pump And Riser Room Size

2 14 Fire And Rescue Service Facilities

2 14 Fire And Rescue Service Facilities